Kläppvägen 23

Teg, Umeå

Rymlig och välskött familjevilla med kanonläge på Söderslätt!

Fin friliggande villa med centralt läge på Kläppvägen på Teg. Här bor man i det omtyckta villaområdet Söderslätt, ett kvarter som är mycket barnvänligt. Det är nära både till Östtegs skola (F-6) och till flera förskolor. Centrala Umeå nås efter en promenad på en kvart och till köpcentret Avion och IKEA är det några minuters promenad. Villan håller genomgående hög standard med välbehållen utsida och moderna treglasfönster. Huset erbjuder ett stort och modernt kök, exklusivt helkaklat badrum och wc, fyra fina sovrum samt goda förrådsutrymmen. Här finns det gott om plats för familjens behov med utrymmen för barn och hobbys! Högeffektiv bergvärme är installerat vilket ger villan låg drift och boendekostnader. Huset fick vid energideklarationen ett mycket bra resultat, energiklass B, vilket ger möjlighet till gröna bolån med ränterabatter hos bankerna. Umenets bredbandsfiber är installerat på fastigheten. Välkomna att boka visning av detta trivsamma hus!

Fakta

Utgångspris
5 395 000 kr
eller högstbjudande
Fast.beteckning:

Avbitaren 1

Rum

6 st

Sovrum

4 st

Boarea

181.9 m²

Biarea

19.4 m²

Tomtarea

818 m²

Byggnadstyp

1 1/2 plansvilla

Byggnadsår

1957

Fastighetsmäklare

Profil

Bo-Gunnar Samuelsson

070-330 78 01

bg@maklarcity.se

Interiör

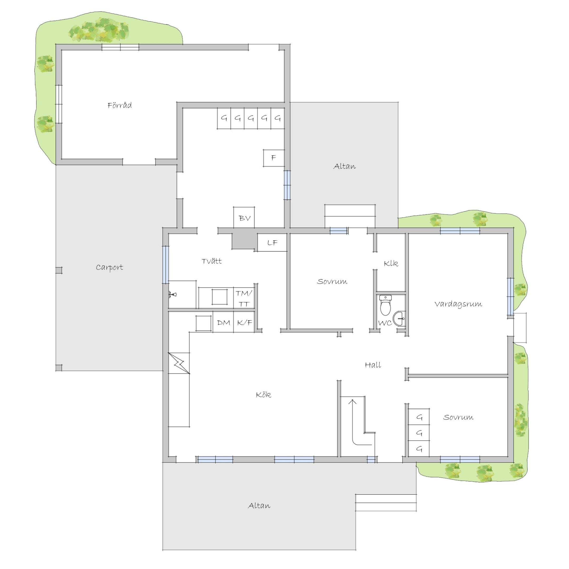
Entrén till huset sker via en farstukvist. Bottenvåning: Hall och wc Välkomnande tapetserad hall varav en vägg med Morristapet. Hallen har ett mörkbrunt klinkergolv med vattenburen golvvärme. Från hallen nås en helkaklad toalett med vägghängd wc och elgolvvärme. Kök Stort härligt kök från Nordanro (Elon). Köket som är på hela 30 kvadratmeter renoverades 2022 och är husets självklara hjärta. Köksinredningen går i vitt med gedigna bänkskivor i Silestone, här har man generöst tilltagna arbetsbänkar och gott om plats för förvaring. Köket har fullstor integrerad kyl samt diskmaskin, här finns också varmluftsugn och induktonshäll med en inbyggd fläkt ovanför. Golvet är ett vitpigmenterat enstavigt ekplankgolv, på väggarna sitter en ljus tapet. Från köket har man utgång till en stor altan med kvällssol, altanen är försedd med en fin terassmarkis. Vardagsrum Vardagsrum med bokparkett och ljus tapet. Från vardagsrummet har man utgång till södra sidan av trädgården, även på denna soliga sida av huset har man en markis. Sovrum Sovrum 1 har bokparkettgolv och tre fasta garderober. Sovrum 2 har parkettgolv och tapet. Från sovrummet har man utgång till altan och trädgård, från sovrummet nås även en klädkammare. Tvättstuga Tvättstuga med tvättpelare, tvättmaskin och torktumlare (2025), rostfri tvättho samt en duschplats. I tvättstugan finns en garderob och en liten klädkammare. Groventré Från tvättstugan nås husets rymliga groventré där man har fem garderober samt en frys. Groventrén sker under den väderskyddande carporten vilket är mycket praktiskt. Övre plan: Allrum Allrum med ekparkettgolv och vitmålat paneltak. Från allrummets sidor nås två kallförråd. Badrum Stort helkaklat badrum med elgolvvärme som är inrett med vikdusch, badkar, wc samt en kommod med belyst spegel ovanför. I badrummet finns också ett vägghängt skåp. Badrummet har ett fönster. Sovrum Sovrum 3 med ekparkettgolv och tre fasta garderober. Från sovrummet har man utgång till en balkong. Sovrum 4 med bokparkettgolv och tre fasta garderober.

Tomt

Uppvuxen trädgårdstomt.

Gräsmatta, bärbuskar, trädgårdsland, plommon och körsbärsträd samt en flaggstång.

Planbestämmelser

Stadsplan (1962-01-16) Tomtindelning (1956-11-19)

Bredband

Umenets bredbandsfiber är installerat i huset.

Ventilation

Självdrag kompletterat med frånluftsfläktar.

Vatten och avlopp

Kommunalt vatten året om. Kommunalt avlopp.

Energideklaration

Utförd

Utförd: 7/1 2026

Klass

B

Elektricitet

Nätbolag

Umeå Energi

Leverantör

Umeå Energi

Förbrukning

12 132 kWh/år

Drift per år

Vatten/avlopp

9 810 kr

Elförbrukning

19 096 kr

Renhållning

3 072 kr

Summa

31 978 kr

Taxeringsuppgifter

Typkod

220, Småhusenhet, bebyggd.

Totalt

3 979 000 kr

Byggnad

2 149 000 kr

Mark

1 830 000 kr

Skatt/avgift

10 425 kr

Taxeringsår

2024

Värdeår

1962

Pantbrev

Summa

2 405 000 kr

Antal

10 st

Närområde

Teg är en historisk stadsdel vid Umeälven med stora rekreationsvärden, beläget på Umeälvens södra strand, mittemot Umeås stadskärna och Umeälven. Den tidigare E4:an har skapat uppdelningar, Öst- och Västteg, men detta förändras nu då målet är att överbrygga älven och vägarna med fler kopplingar för fotgängare och cyklister, när den gamla E4:an genom området blir en stadsgata. Teg har byggts ut succesivt genom åren, vilket har skapat en mosaik av bebyggelsemiljöer. Söderslätts tidstypiska ringgator och egnahemsbebyggelse berättar sin del av historien vilket gör att denna stadsdel ligger många varmt om hjärtat. De stora besöksmålen i stadsdelen är Tegs centrum, Winpos arena ("isladan" i folkmun) samt Ikea och Avion i stadsdelens södra utpost. Två av stadsdelens pärlor och sammanhängande grönområde är Ön och Bölesholmarna. Vid Bölesholmarna finns vackra älvsnära promenader, badplats, grillplatser och möjlighet till fiske. För rekreation är också Röbäcksskogen central med bl a skidspår.

Kommunikation

Gång- och cykelavstånd till Umeå centrum. Även goda bussförbindelser till och från centrala Umeå, Umeå universitet och Norrlands universitetssjukhus.

Närservice

Avion köpcenter och Tegs centrum med familje och hälsocentral, apotek, bank, frisörer, konditori och mataffär. I närområdet finns också bibliotek, folktandvård, bensinmackar, restauranger och gym. Skolor och barnomsorg Böleängsskolan (F-6) Östtegsskolan (F-6), Engelska internationella skolan (F-9) och Tegs centralskola (7-9). Tegs centralskola erbjuder Norrlands största anläggning för spontanidrott, Qulan, byggd år 2006. Flera förskolor finns i området.

Byggnad

Typ

1 1/2 plansvilla

Byggår

1957

Bjälklag

Trä

Fasad

Trä- tre sidor bytta 2022-2023

Grund

Betongplatta

Stomme

Trä

Uppvärmning

Bergvärme

Tak

Plåt

Fönster

3-glas

Renoveringar

Sedan förvärvet har nuvarande ägare genomfört omfattande renoveringar ny och ombyggnationer. Här nedan finns en tidsaxel för dessa arbeten. 2000 Ombyggnation, garaget togs bort, köket byggdes om till nuvarande storlek. 2001 altanen på framsidan av huset byggdes. 2004 ny- och tillbyggnation av kupa 2007 ny- och tillbyggnation av carport och förråd 2009 byttes fönster till Traryd 3-glas superenergi 2009 byttes hängrännor och stuprör 2010 renoverades hall och toalett nere som då försågs med golvvärme 2011 markiser 2012 installation av bergvärme, borrhål över 200 meter djupt. 2015 slipning och lackning av bokparkett i vardagsrum 2016 renoverade på badrummet i övervåningen (trodde man fått en vattenskada, vilket inte var fallet) 2016 besiktning av Anticimex (ingår i Folksams husförsäkring) 2019 rengöring av avlopp och golvbrunnar 2021-2022 bytt brädfodring utvändigt samt målat, dock inte bytt brädfodring ovanför vissa fönster eller på framsidan vid entré samt vid altan.

Övrigt

Huset är mycket välskött och är smakfullt färgsatt, här är det bara att flytta in.

Övriga byggnader

Bakom carporten byggdes ett stort varmbonat förråd på betongplatta. Dessa byggnationer gjordes 2007. Friggebod och lekstuga finns på tomten.


Karta


Planlösning


Bilder