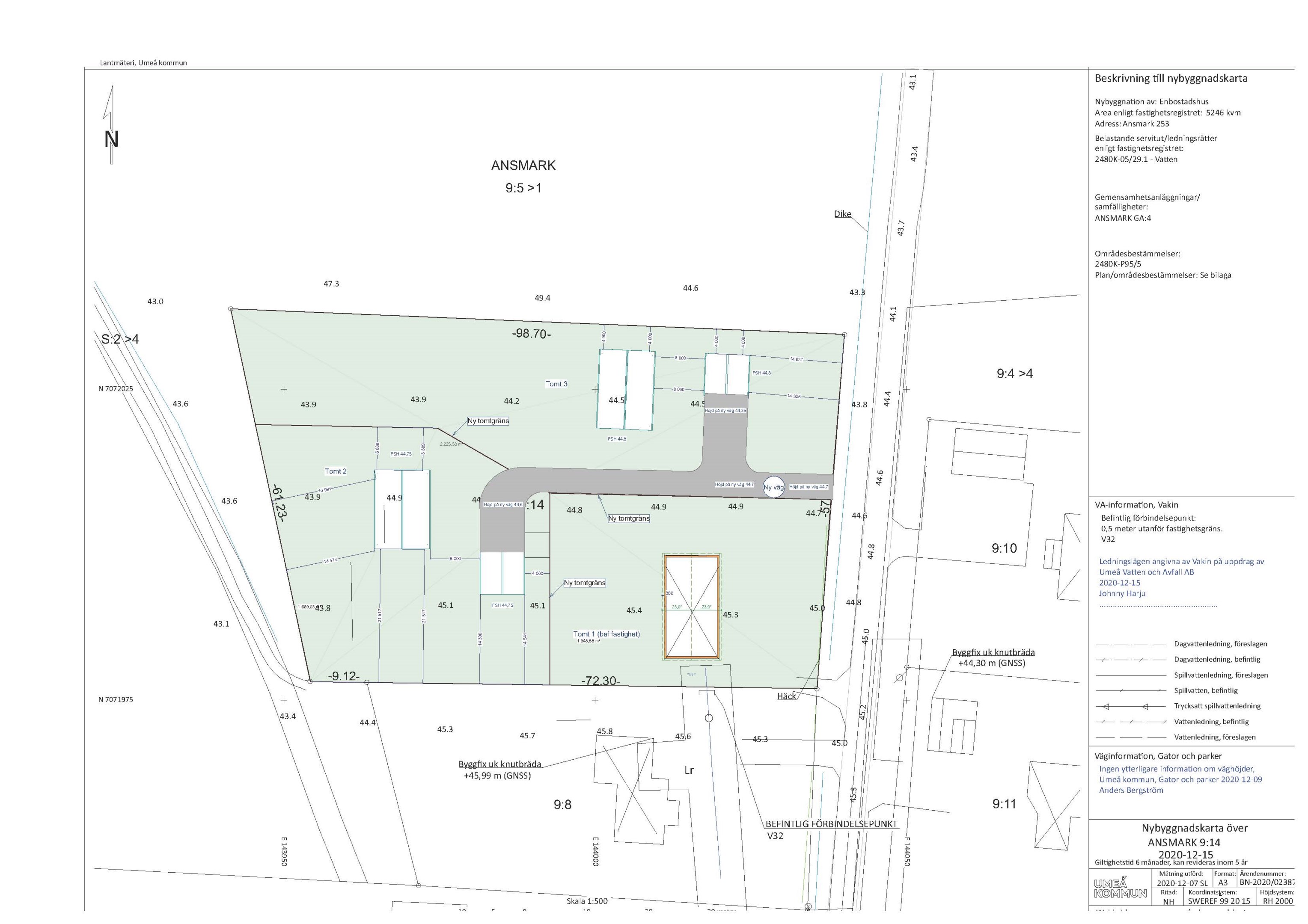
Tomt med bygglov till salu

Ansmark 9:15

Ansmark, Umeå

Stor villatomt med godkänt bygglov och fint läge i Ansmark

Förverkliga drömmen om att bygga ett nytt hus på en lantligt belägen tomt med endast 13 minuters bilfärd in till Umeå centrum. Tomten lämpar sig mycket väl för bebyggelse och bygglov för enbostadshus med garage och carport finns. Här bor man på landet i en levande by med fina rekreationsmöjligheter i området så som strövområden med bär och svampplockning och fina skoterleder vintertid. Kommunalt vatten och bredbandsfiber via SAIT (stöcksjö ansmark IT) kan grävas in och anslutas. Här har ni möjligheten att förverkliga er dröm om att bygga ett eget hus på landet nära stan!

Fakta

Utgångspris
795 000 kr
som utgångsbud
Tomtarea

1 670 m²

Fast.beteckning:

Ansmark 9:15

Fastighetsmäklare

Profil

Bo-Gunnar Samuelsson

070-330 78 01

bg@maklarcity.se

Vägbeskrivning

Kör E4:an söderut. Sväng av E4:an på höger sida, följ grusvägen ca 900 m, tomten är på vänster sida innanför den röda villan.

Vatten och avlopp

Eget vatten och avlopp får anordnas.


Karta



Bilder