Mellansvartbäck 1:36
Yttersjö, Umeå
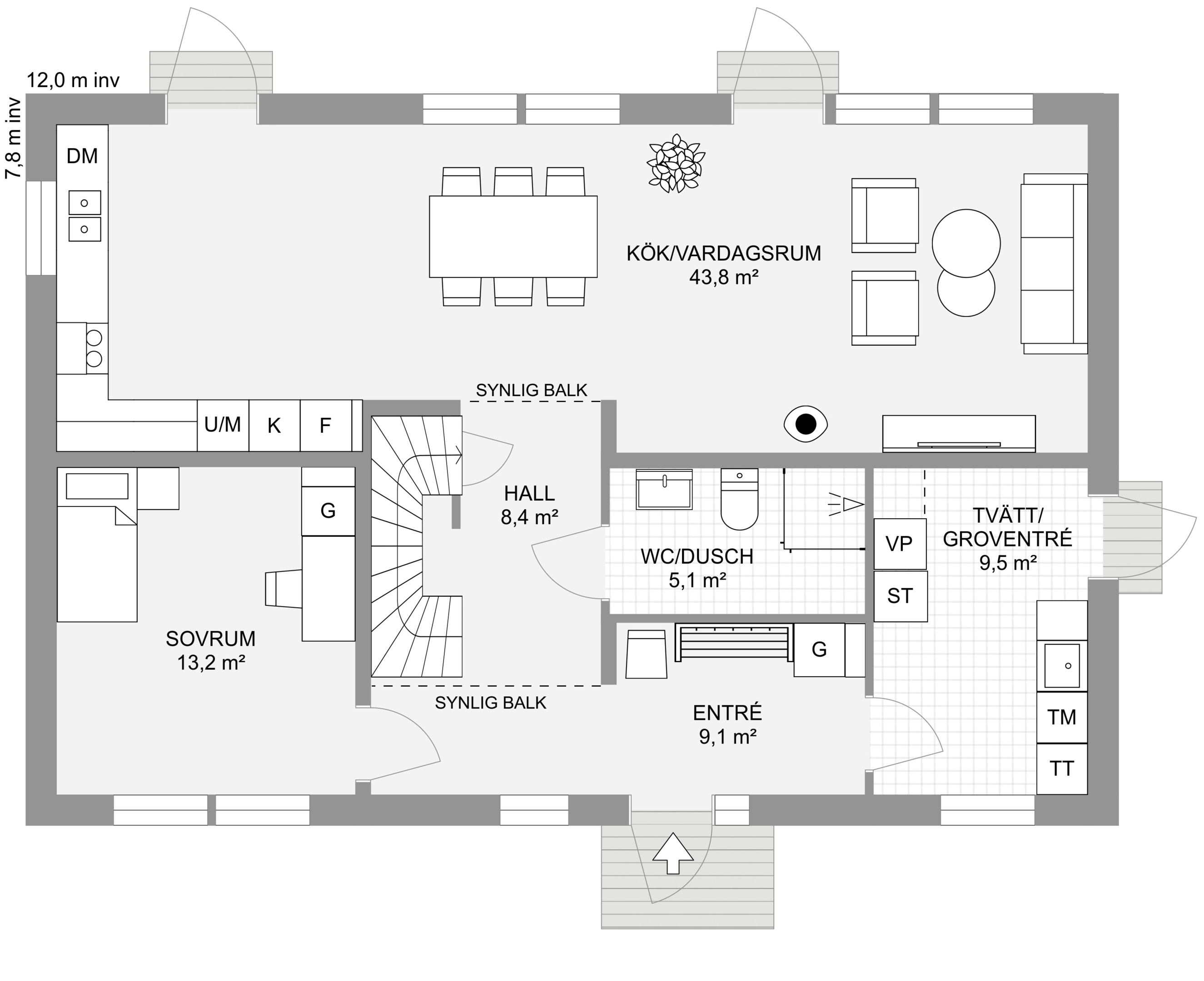
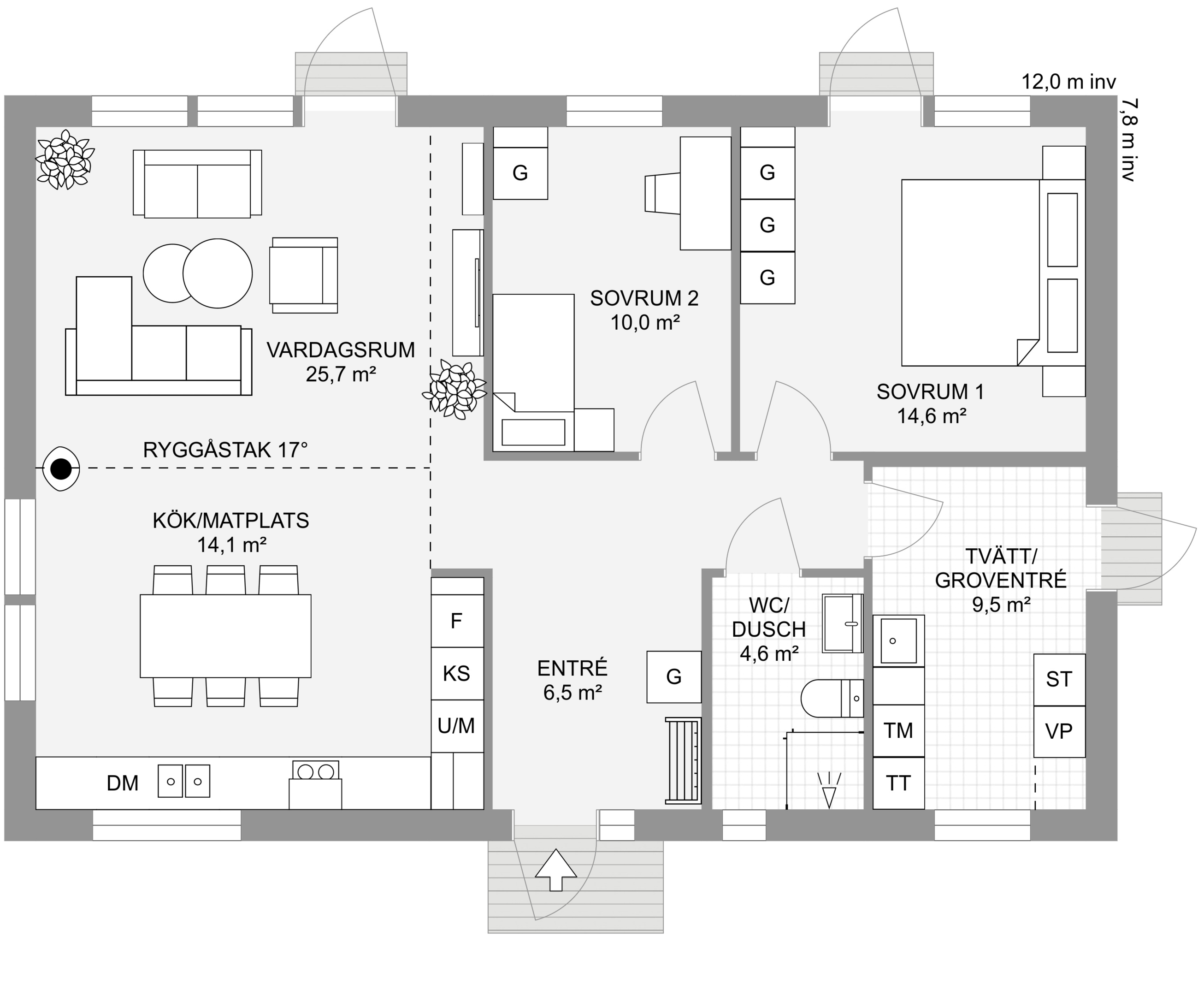
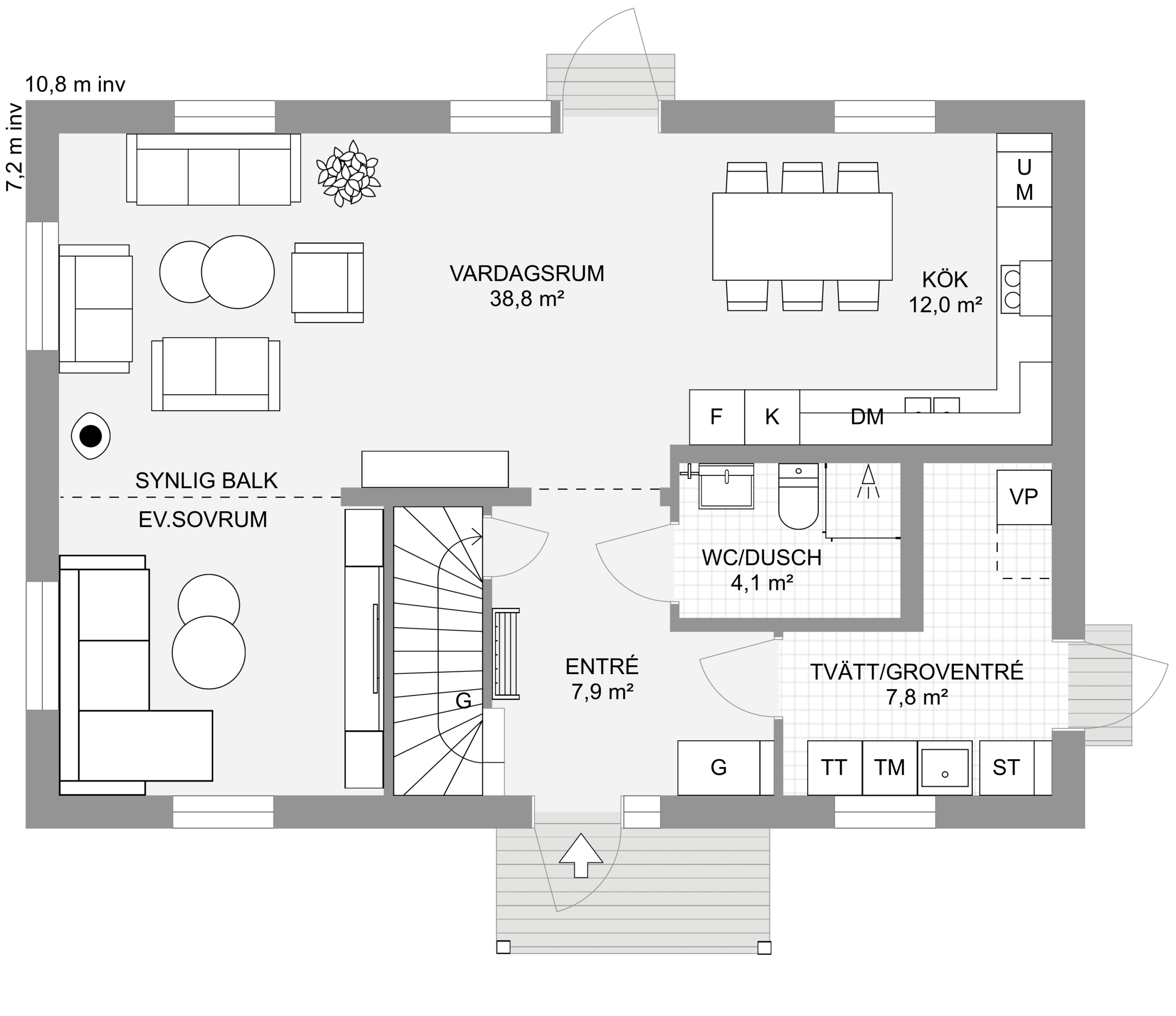
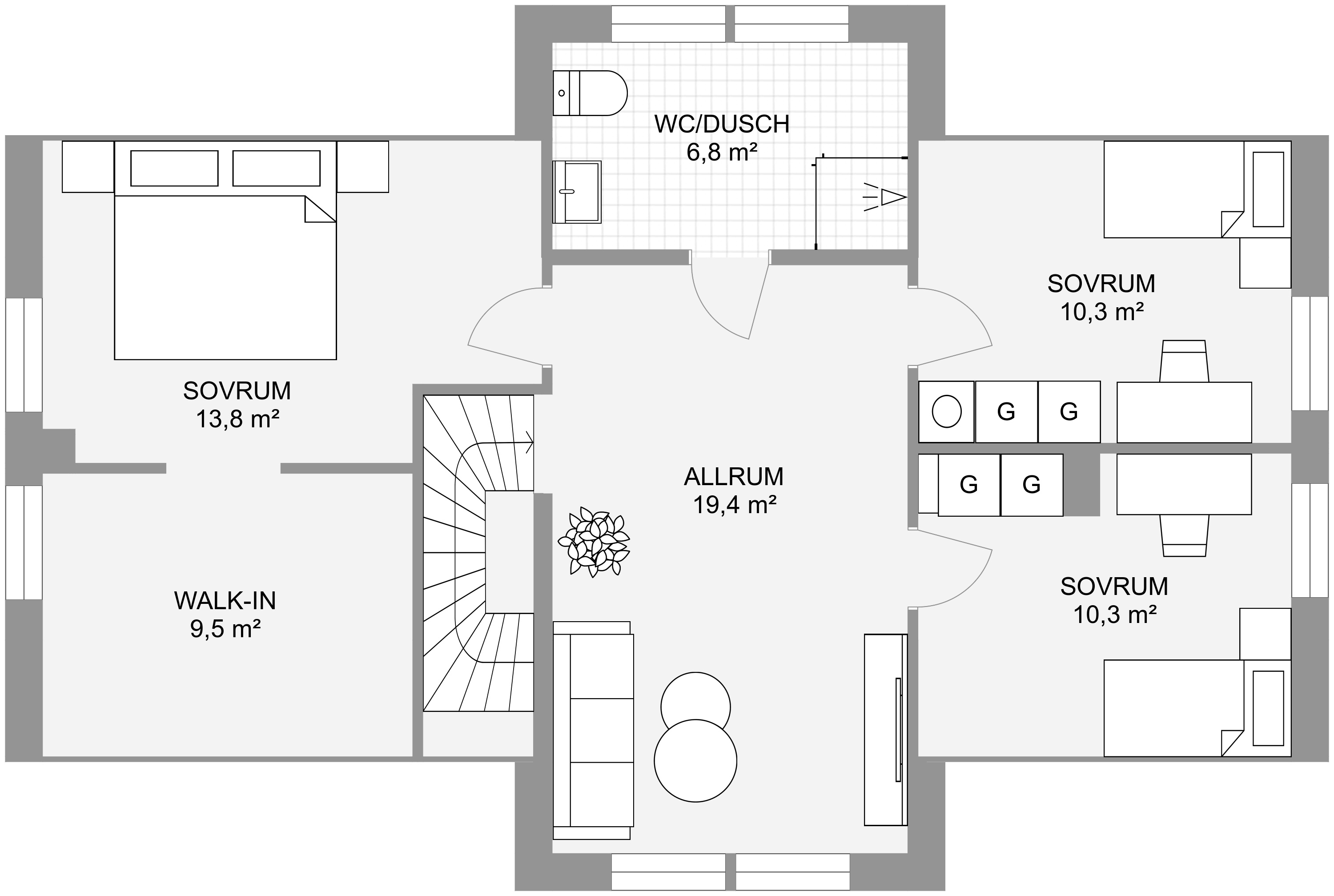
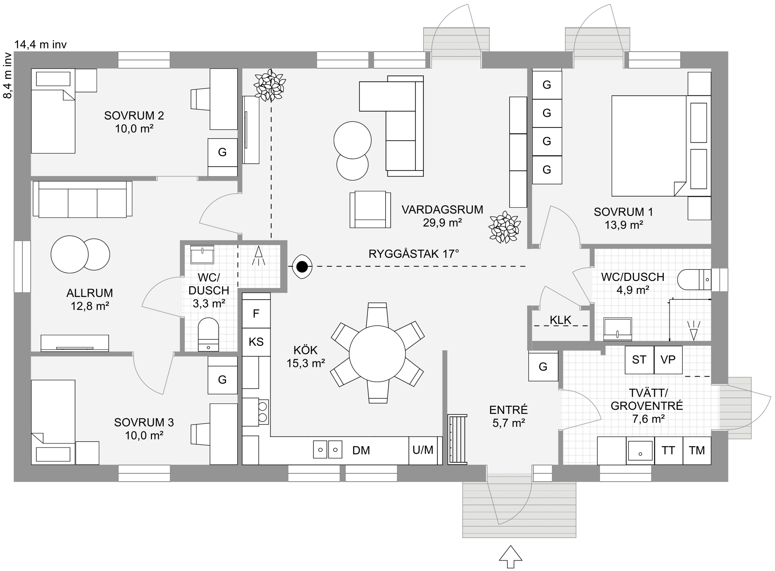
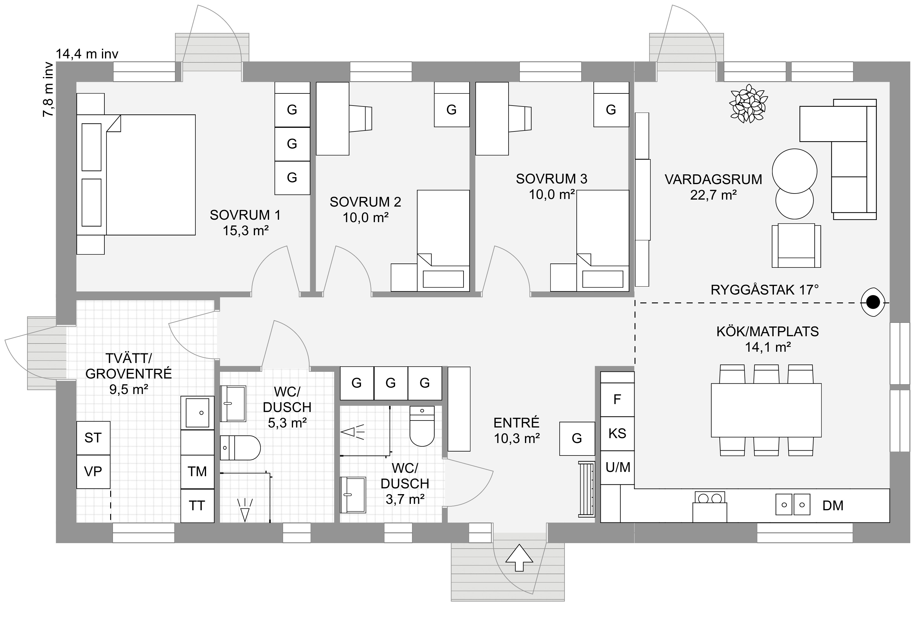
Nyckelfärdigt hus med tomt från 4 395 000 kr Drömmer du om att bygga nytt i naturnära miljö? Nu finns möjligheten att förvärva en tomt med helentreprenad från Bra Hus – ett perfekt tillfälle för dig som vill skapa ett hem helt efter dina egna visioner. Välj bland flera genomtänkta husmodeller eller låt fantasin flöda och rita ditt eget hus utifrån personliga önskemål och behov. I charmiga Mellansvartbäck bor du med naturen och grönskan som närmsta granne, samtidigt som den vackra Bjännsjön ligger endast ett stenkast bort – idealiskt för såväl avkopplande promenader som aktiva dagar utomhus. Här får du det bästa av två världar: ett lugnt och naturskönt läge med närhet till friluftsliv, men utan att kompromissa med tillgängligheten. Centrala Umeå nås enkelt med en kort bilfärd, och goda kommunikationsmöjligheter gör vardagen smidig för både arbete och fritid. Välkommen att ta första steget mot ditt framtida drömboende! PS. Bilderna är datorgenererade och visar hur ett färdigt hus i denna affär kan se ut. Modell – Plan – Boyta – Byggyta – Antal rum Smultronstället 94 – 1 planshus – 93,6 m² – 108,4 m² – 3 rok Smultronstället 112 – 1 planshus – 112,3 m² – 128,8 m² – 4 rok Smultronstället 121 – 1 planshus – 121,0 m² – 137,9 m² – 5 rok Smultronstället 135 – 1 planshus – 135,4 m² – 157,0 m² – 4 rok Smultronstället 141 – 1 planshus – 141,1 m² – 161,9 m² – 5 rok Smultronstället 147 – 1 planshus – 147,2 m² – 169,4 m² – 6 rok Smultronstället 151 – 1 planshus – 151,2 m² – 170,3 m² – 5 rok Smultronstället 169 – 1,5 planshus – 168,7 m² – 108,4 m² – 6 rok Smultronstället 156 - 2 planshus utan/med carport – 155,6 m²- 6–7 rok https://www.brahus.se/vara-hus/smultronstallet/ Här väljer vi att premiera ''Smultronstället-husen'' vilket är Bra Hus mest prisvärda husmodeller och ger dig mycket för pengarna! Pris varierar beroende på husvariant. Det går även att välja andra modeller, arkitektritat eller något av de hus ni finner i nedanstående länk. Länk till alla modeller: https://www.brahus.se/vara-hus/ Livolo Bygg AB kompletterar med arbete, betongplatta samt kakel, klinker, spackel och invändig målning – så att huset blir helt nyckelfärdigt. Skog på tomt är till stor del röjd och innebär ingen extra kostnad. Bygglovshandlingar ingår i priset. Kostnader som kunden själv behöver ta hänsyn till (ingår ej): - Bygg-el: ca 10 000 - 25 000 kr beroende på årstid. - Geoteknisk undersökning: ca 33 000 kr - Anslutningsavgifter: VA (kommunalt): ca 290 000 kr. El: ca 50 000 kr - Bygglovskostnader: Nybyggnadskarta ca 10 000 kr, startbesked ca 40 000 kr, utstakning ca 12 000 kr. - Kontrollansvarig: ca 20 000 - 30 000 kr beroende på hur många platsbesök som krävs. Drift per år (schablonberäknat): - Försäkring: 5 000 kr - Vatten/avlopp: 2 600 kr - Elförbrukning: 18 000 kr, 10 000 kWh (hushållsel samt uppvärmning) - Renhållning: 1 800 kr Summa: 27 400 kr/år (preliminär, varierar beroende på förbrukning och avtal) Ytterligare dokument gällande konstruktion, materialval, tillval, https://www.brahus.se/bygga-hus/bra-hus-konstruktion/ https://standardochtillval.brahus.se/produkt/e/905/franluftsvarmepump-s735/
Fakta
Utgångspris
Tomtarea
1 811 m²
Fast.beteckning:
Mellansvartbäck 1:36
Fastighetsmäklare
Drift per år
Försäkring
5 000 kr
Vatten/avlopp
2 600 kr
Elförbrukning
18 000 kr
Renhållning
1 800 kr
Summa
27 400 kr
Närområde
Yttersjö är en tätort i Umeå kommun som ligger 16 km västsydväst om Umeå. Historiskt var skogsbruk viktigt i bybornas ekonomi. Fram till 1970-talet fanns ett sågverk i byn. Idag utgör byn på grund av sitt relativt stadsnära läge mer en lantlig ytterförort till Umeå än en traditionell by.
Kommunikation
Ett flertal busslinjer passerar utanför Yttersjö.
Karta
Bilder
Smultronstället 147_Grå
Smultronstället 141_Grå XX
Smultronstället 151_Grå_Ny
Smultronstället - 151 - Bottenplan - 2D Floor Plan
Smultronstället 121_Grå XX
Smultronstället 112_Grå
Smultronstället 94_Grå_Fasad
Smultronstället 169_Grå
Smultronstället 156_MC_Grå
Smultronstället - 156 - Bottenplan - 2D Floor Plan
Smultronstället - 156 - SPV - Överplan - 2D Floor Plan