Kungsgatan 87
Öst på stan, Umeå
Kungsgatan 87 - Ekholtzka huset från 1919 är nu till salu!
Nu säljer vi ett av Umeås verkliga landmärken - det vackra Ekholzska huset på Kungsatan 87! Byggnaden som uppfördes i herrgårdsliknande stil 1919 av de kända umeåfotograferna Tor och Nanna Ekholz, och 1921 kompletterades byggnaden med en bostadsflygel i anslutande stil mot Östra Esplanaden. Arkitekten var Umeås dåvarande stadsarkitekt Erik Karlstrand som även ritat det vackra huset på Kungsgatan 29, han var senare huvudsakligen verksam i Stockholm. Huset har idag totalt 12 lägenheter, här finns även 6 garage och 11 parkeringar. Kontakta mäklaren för mer information.
Fakta
Fast.beteckning:
Uller 3
Byggnadstyp
Flerfamiljshus
Byggnadsår
1919
Fastighetsmäklare
Bredband
Umenet.
Elektricitet
Nätbolag
Umeå Energi
Leverantör
Göteborgs energi
Drift per år
Uppvärmning
141 731 kr
Vatten/avlopp
39 319 kr
Elförbrukning
50 151 kr
Renhållning
13 987 kr
Summa
245 188 kr
Taxeringsuppgifter
-
Typkod: 321, Skatt/Avgift: 49 282 kr, Taxeringsår: 2025, Taxeringsvärde: 6 002 000 kr
Värderingsenhet
Värdeår
Taxeringsvärde
Hyreshusmark för lokaler
1 918 000 kr
Hyreshusmark för bostäder
520 000 kr
Hyreshusbyggn för lokaler
1929
2 550 000 kr
Hyreshusbyggn för bostäder
1929
1 014 000 kr
Pantbrev
Summa
4 500 000 kr
Antal
7 st
Närområde
Öst på stan är ett mycket eftertraktat och populärt område med centralt läge mellan centrum och universitetet och sjukhuset. Här är bebyggelsen blandad med många vackra äldre hus och nyare lägenhetshus. Öst på stan finns många mindre butiker, restauranger, gallerier, och caféer. I söder angränsar Umeälven med vackra promenadstråk. Här bor du nära Konstnärligt campus där Bildmuseet, Arkitekthögskolan, Designhögskolan och gymmet Iksu Plus huserar.
Kommunikation
Gång- och cykelavstånd till Umeå centrum, Norrlands universitetssjukhus, Umeå universitet och Umeå Östra resecentrum. Även goda bussförbindelser till andra stadsdelar.
Närservice
Öst på stan finns några mindre butiker och vid Östra station finns en större Coop-butik. Det tar bara några minuter att gå eller cykla in till Umeå centrum med stort utbud av butiker, restauranger och caféer. Vid Östra Station har USM nyligen öppnat en ny anläggning med fullt utrustat gym för styrketräning, konditionsträning och gruppträning. Skolor och barnomsorg Östermalmsskolan (1-6). Minervaskolan (F-9). I området finns det gott om förskolor.
1
Typ
Flerfamiljshus
Byggår
1919
Bjälklag
Trä
Fasad
Trä
Stomme
Trä
Uppvärmning
Fjärrvärme
Tak
Tegel
Fönster
2-glas & 3-glas
Vatten/avlopp
Kommunalt
Ventilation
Självdrag.
Våningar
3 st.
Energideklaration
Ej utförd
Bredband
Umenet.
Beskrivning
Flerfamiljshus.
Interiör
Lägenheter med ingång från Östra Esplananden Bottenvåning 92 kvm hyrs av företag, moms ingår Våning 1: 140 kvm Kungsgatan 87 Bottenvåning 105 kvm Våning 1, 50,5 kvm hyrs av företag moms ingår Våning 2, 74 kvm hyrs av företag moms ingår Kungsgatan 87 ingång mot gatan Bottenvåning vänster 115 kvm Bottenvåning höger 120 kvm Kungsgatan 87 Våning 1, alla dessa lägenheter hyrs ut till företag, moms ingår. Lägenheterna har gemensamt kök om 15,54 kvm Nr 1: 51,72 kvm Nr 2: 38,76 kvm Nr 3: 45 kvm Nr 4: 37,6 kvm Nr5: 26,3 kvm Uppgifterna ovan hänför sig till den kontrollmätning som säljaren gjort inför försäljningen. Köparen uppmanas att även själv kontrollmäta dessa ytor. Hyror, ej moms: Privat: 11.500 kr/mån Privat: 12.000 kr/mån Privat: 11.500 kr/mån Privat: 8.500 kr/mån Hyror företag, moms ingår: Företag: 17.576 kr/mån Företag: 8.500 kr/mån Företag: 8.500 kr/mån Företag: 5 lägenheter - 42.000 kr/mån.
Gemensamma utrymmen
Varmförråd och fastighetskontor i källaren, stora utrymmen på vinden.
Ytor
Summa yta
964 m².
Summa hyresintäkter
1 257 129 kr/år.
Bostäder där moms ingår
Area
964 m².
Antal
4 st.
Hyresintäkt
522 000 kr/år. 541 kr/m².
Hyresintäkter, moms tillkommer
Antal
8 st.
Hyresintäkt
735 129 kr/år.
2
Byggår
1919
Karta
Planlösning
Bottenvåning Kungsgatan 87
Övervåning Kungsgatan 87
Källarvåning Kungsgatan 87
Bottenvåning Huskropp mot östra Esplanaden
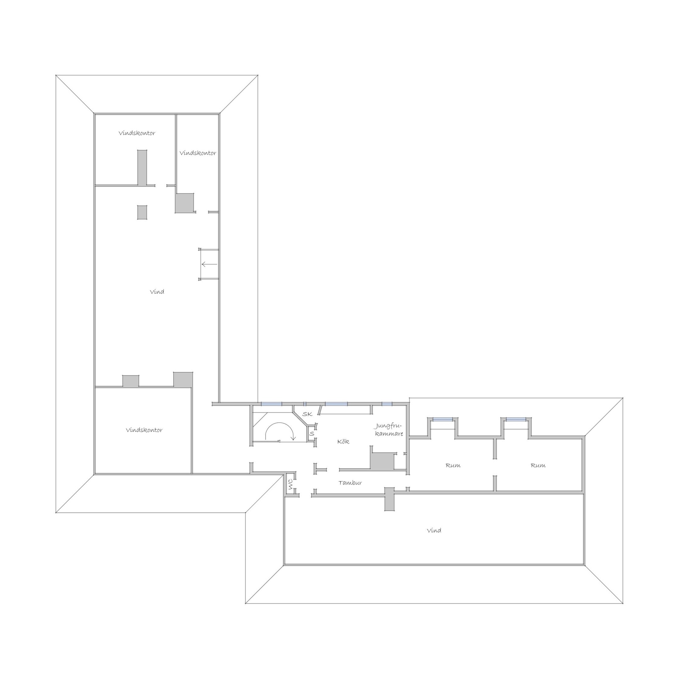
Vindsvåning båda huskropparna (äldre ritning), detalj på huskropp 2 kommer
Detalj vindsvåning huskropp 2 med aktuell planlösning och inritat badrum
Källare huskropp mot östra esplanaden
Garage
Umeå centrum
Bilder
Fastighetskarta
Fastighetskarta
Fastighetskarta
Universitetet
NUS
Östra station
Designhögskolan