Kärrvägen 13E

Ersboda, Umeå

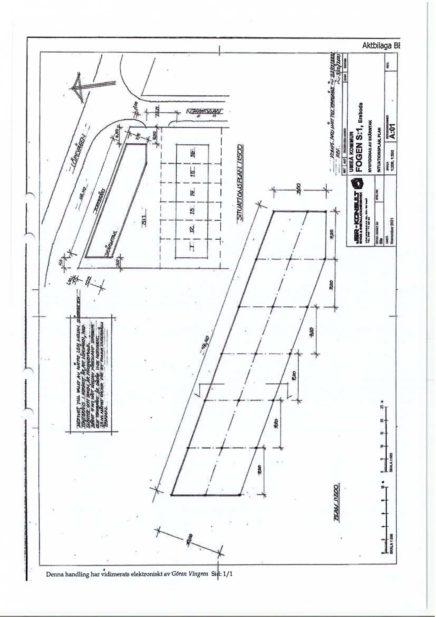
Fin fastighet med industrigarage och kontorsvåning, då byggnaden är hela 9,5 meter hög finns här förutom kontorsvåningen även möjlighet att inreda ett entresolplan. Garagedelen har betongplatta med EPX Temafloor Massagolv. Inredning av kontorsvåning är påbörjad, säljaren som är ett byggföretag erbjuder sig att till lågt självkostnadspris färdigställa denna kontorsinredning. Här får man utomhus fina uppställningsmöjligheter på asflaterade ytor för fordon m.m. Fastighetslängan har låga samfällda driftskostnader, och man har även gemensamt investerat i en solcellsanläggning som idag producerar ca 35000kWh/år. Bredband ingår i samfällighetsavgiften. Fastigheten har ett mycket bra läge på det Kärrvägen 13E, en del av det expansiva industriområdet på västra Ersboda.

Fakta

Utgångspris
1 995 000 kr
eller högstbjudande
Fast.beteckning:

Fogen 12

Byggnadstyp

Lokal

Byggnadsår

2020

Fastighetsmäklare

Profil

Bo-Gunnar Samuelsson

070-330 78 01

bg@maklarcity.se

Övrigt

Samfälligheten har en gemensam oljeavskiljare. Alla fastigheter har mätare för el och vattenavläsning, detta sker årsvis.

Elektricitet

Nätbolag

Umeå Energi

Leverantör

Umeå Energi

Drift per år

Övrigt

31 000 kr

Summa

31 000 kr

Driftskostnaden är beräknad under övrigt. Övrigt utgör samfällighetsavgiften som uppgår till 5000:-/kvartal, 20.000:-/år. I denna ingår preliminär el, vatten, avlopp, gemensam oljeavskiljare och bredband. Varje byggnad har mätare för årsvis avläsning av förbrukad el och vatten. Fastigheten har haft låg konsumtion, driften har här höjts och normaliserats och tilläggsberäkningen för el har gjorts med 11000:-/år vilket ger en total driftskostnad på 31000:-/år. Fastigheterna är försedda med en gemensam solenergianläggning på taket, denna anläggning har producerat ca 35000 kwh/år vilket gör att driftskostnaderna på fastigheterna hålls nere.

Taxeringsuppgifter

  • Värderingsenhet
    Värdeår
    Taxeringsvärde

    Lager värderat enligt avkastningsmetoden

    2020

    717 000 kr

    Industrimark

    369 000 kr

Pantbrev

Summa

1 000 000 kr

Antal

1 st

Närområde

Ersboda är en stadsdel med lite mer än 10 000 invånare. Här bor du nära både handel och natur, och på Ersboda Folkets hus finns både biosalong, bibliotek och restaurang. Till närmsta badsjö, Nydalasjön, finns det både en vattenpark samt fina möjligheter att bada. Dit tar du dig enkelt vare sig du cyklar, promenerar eller tar bilen.

Kommunikation

Gång- och cykelavstånd till Ersboda handelsområde. Goda bussförbindelser till och från centrala Umeå, Umeå universitet och Norrlands universitetssjukhus.

Närservice

På Ersboda handelsområde finns bland annat stormarknader, systembolag, apotek, elektronik- och klädaffärer. På Östra Ersboda finns Folkets hus som erbjuder en mängd olika evenemang. Här finns även bibliotek och vårdcentral. På Ersboda centrum finns en friskvårdsanläggning med bad och gym. Skolor och barnomsorg Ersdungen (F-6), Ersängsskolan (F-9), Östra Ersbodaskolan (F-6 och särskola). I området finns det gott om förskolor.

1

Typ

Lokal

Byggår

2020

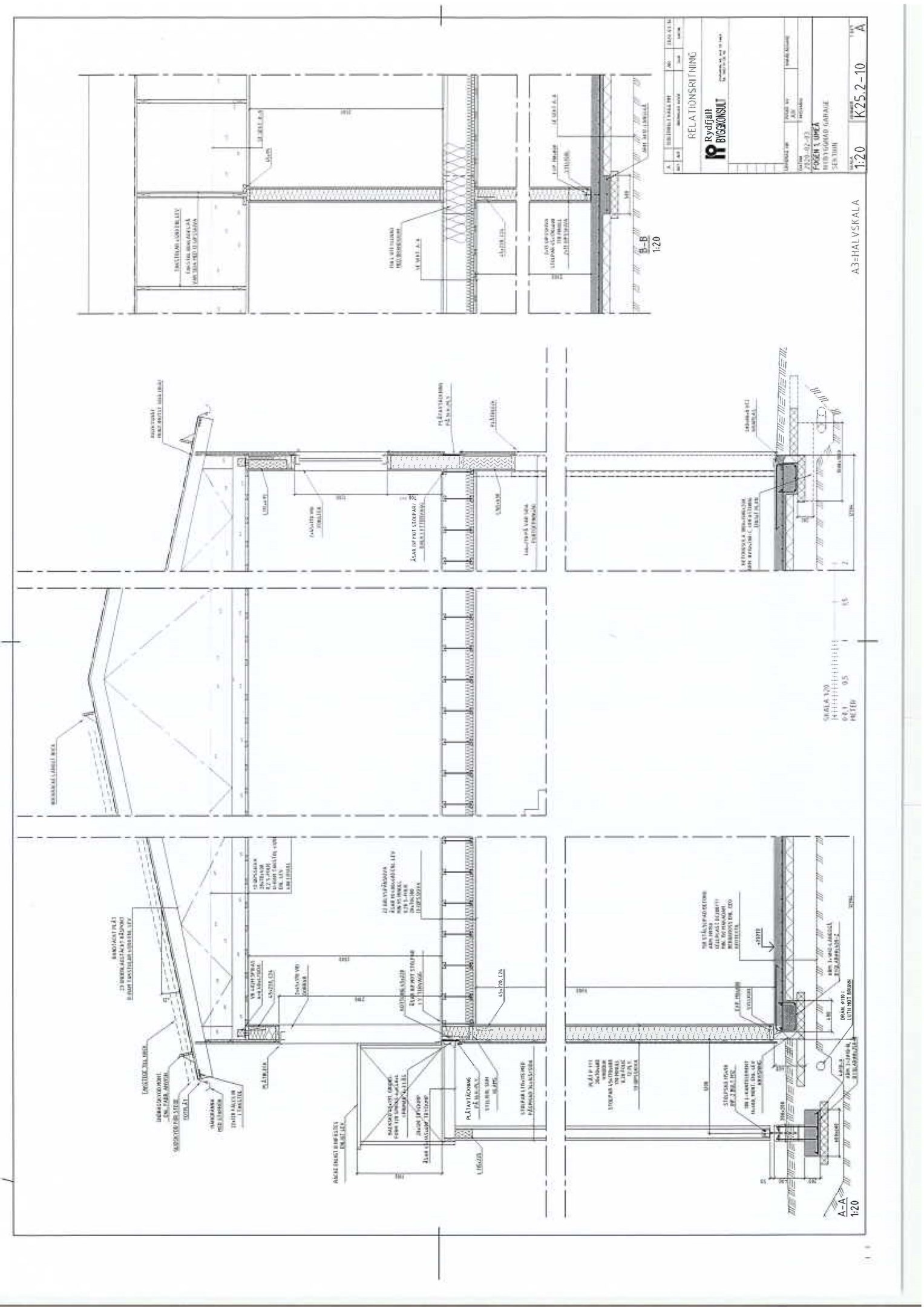
Bjälklag

Trä

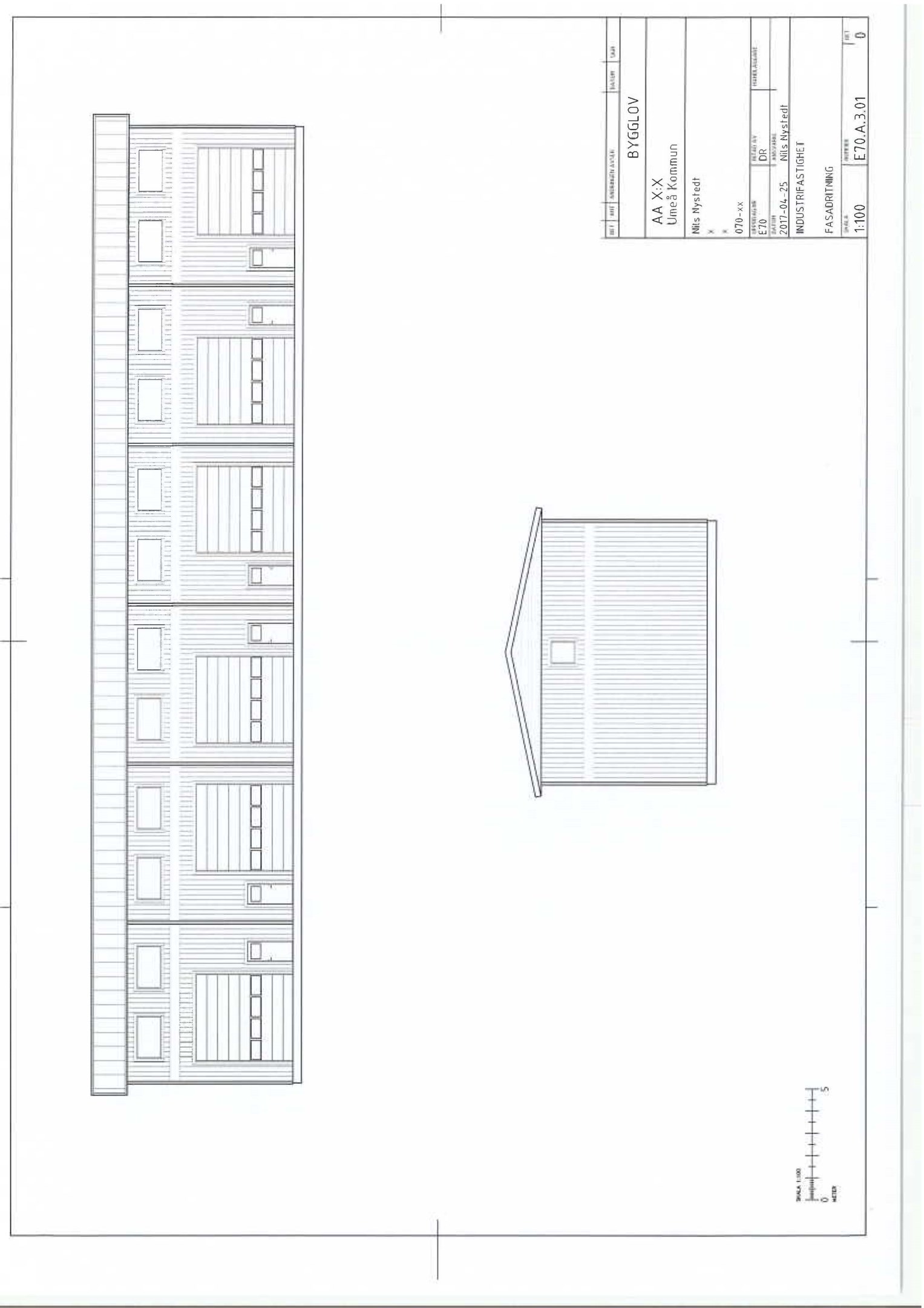
Fasad

Stående plåt

Grund

Betongplatta

Stomme

Trä

Uppvärmning

Luftvärmepumpar och el

Tak

Falsad plåt

Fönster

3-glas

Beskrivning

Lokal med 84 kvm garage med 490 cm takhöjd och 4,5 meters port - från garaget finns trapp upp till kontorsplan som även det är på 84 kvm. Garaget är 12 meter djupt och 7 meter brett. Kontoret är förberett för kök och badrum. Detta våningsplan kan mycket förmånligt färdigställas med kök, badrum och kontorsrum, denna färdigställning utförs då av det säljande byggföretaget och priset för färdigställandet är endast 100.000:-. Då takhöjden i garaget är hela 490 cm kan man här även inreda ett entresolplan. Vid frågor om kontorsinredning och entresolplan, kontakta handläggande mäklare för mer information.

Gårdsplan, innergård

Samfälligheten har gemensamt ansvar för snöröjning av gårdsplanen. Detta har fungerar mycket smidigt.

Ytor

Summa yta

168 m².

Kontor

Area

84 m².

Antal

1 st.

Garage

Area

84 m².

Antal

1 st.


Karta


Planlösning


Bilder