Lövöhällans väg 33

Holmsund, Umeå

Välplanerat radhus nära golfbana och natur!

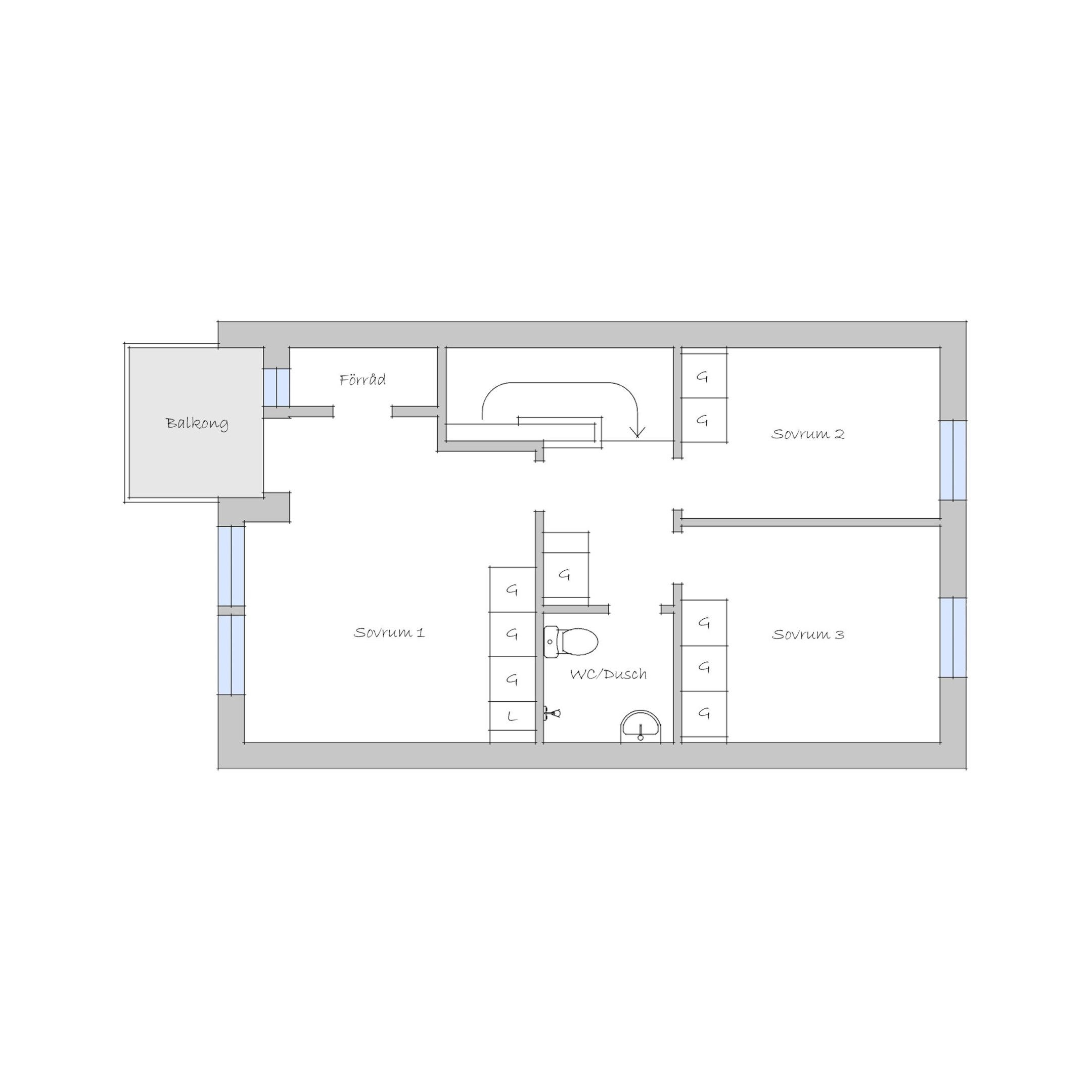
Välkommen till ett modernt och lättskött radhus från 2007 – ett hem som kombinerar funktion, stil och trivsel på bästa sätt. Här bor ni i ett barnvänligt område med närhet till natur och golfbana, samtidigt som bostaden erbjuder allt en familj behöver i vardagen. Entréplanet bjuder på en social och välplanerad planlösning med stora fina fönster för ljusinsläpp i två väderstreck. Köket är rymligt med gott om förvaring och arbetsytor, samt plats för matbord vid fönster som vetter mot husets framsida. Vidare öppnar vardagsrummet upp sig med generösa fönsterpartier och direkt access till den stora altanen på baksidan. Här finns gott om plats för både matgrupp och loungedel – en perfekt yta för att njuta de varma dagarna. På framsidan finns ytterligare en stenlagd uteplats där ni kan njuta av kvällssolen. Entréplanet rymmer även ett helkaklat badrum med badkar samt tvättmöjligheter – en praktisk lösning för barnfamiljen. En trappa upp möts ni av bostadens mer privata del med tre sovrum i bra storlek. Från de större sovrummet nås även en balkong – en lugn plats för morgonkaffet, i detta rum finns även en separat klädkammare. Även på detta plan finns ett andra badrum med dusch, vilket förenklar vardagen ytterligare. Planlösningen är genomtänkt med bra förvaring, centralt placerad trappa och ett naturligt flöde mellan rummen. De ljusa ytskikten och stora fönstren skapar en luftig och trivsam känsla genom hela bostaden. Här bor ni i ett lugnt och familjevänligt område med närhet till lekytor, grönområden och golfbana inom bekvämt gångavstånd – ett hem att trivas i under lång tid.

Visningar

  • 16
    april
    torsdag
    kl 17:00 - 18:00
    Visning mot tidsbokning - boka din tid via länken på våran hemsida.
    Klicka här för att boka
  • 17
    april
    fredag
    kl 12:15 - 13:00
    Visning mot tidsbokning - boka din tid via länken på våran hemsida.
    Klicka här för att boka

Fakta

Utgångspris
2 850 000 kr
Fast.beteckning:

Lingonriset 3

Rum

4 st

Sovrum

3 st

Boarea

97 m²

Tomtarea

132 m²

Byggnadstyp

Radhus

Byggnadsår

2007

Delägare/Fastighetsmäklare

Profil

Josefin Granström

070-271 40 89

josefin@maklarcity.se

Interiör

Hall Välkomnande och praktisk hall med slitstarkt klinkergolv i mörkare ton som övergår i ett ljust parkettgolv som löper vidare i övriga rum. Väggarna går i en ljus, neutral kulör som skapar en luftig känsla direkt vid entré. Här finns gott om plats för barnfamiljens ytterkläder och skor. Kök Ljust och funktionellt kök i tidlös stil med vita skåpsluckor och stilrena handtag i mässingston som ger ett modernt uttryck. Bänkskiva i grå nyans och ljust kakel ovan arbetsytorna skapar en fin kontrast. Maskinparken består av spishäll, ugn, köksfläkt, diskmaskin samt fullstor kyl och frys. Här finns gott om både arbetsyta och förvaring, vilket gör köket mycket praktiskt i vardagen. Intill fönsterpartiet mot husets framsida finns plats för matbord. Vardagsrum Ljust och rymligt vardagsrum med genomgående ljusa väggar och vackert parkettgolv. Stora fönsterpartier ger ett fantastiskt ljusinsläpp och skapar en öppen och luftig atmosfär. Här finns gott om plats för både soffgrupp och tillhörande möblemang. Från vardagsrummet nås den generösa altanen på baksidan- en härlig yta som suddar ut gränsen mellan inne och ute under årets varmare månader. Badrum (entréplan) Helkaklat badrum med vita kaklade väggar och mörkare klinkergolv med golvvärme. Här finns badkar med dusch, WC, kommod med handfat och spegelskåp samt tvättmaskin och torktumlare. Ett praktiskt badrum. Altan / Uteplats Stor och härlig träaltan på baksidan med plats för både matgrupp och loungemöbler. Här finns utrymme för grill, umgänge och barnens lek. På framsidan finns även en stenlagd uteplats – perfekt för morgonkaffet. ÖVRE PLAN Sovrum 1 Rymligt sovrum med ljusa väggar och parkettgolv. Här finns gott om plats för dubbelsäng och förvaring i klädkammaren. Fönster ger ett fint ljusinsläpp och här finns också utgången till övervåningens balkong. Sovrum 2 Ljust sovrum med neutrala färgval och parkettgolv. Perfekt som barnrum eller kombinerat sovrum/kontor. Sovrum 3 Ytterligare sovrum med ljusa väggar och parkettgolv. Passar utmärkt som barnrum, gästrum eller hemmakontor. Badrum (övre plan) Helkaklat badrum med vita väggar och mörkare klinkergolv samt golvvärme. Här finns dusch med glasväggar, WC samt handfat med spegelskåp.

Tomt

Friköpt.

Gräsyta fram- och baksida intill uteplatserna.

Stenlagd uteplats på framsidan. Altan på baksidan. Balkong på övervåningen mot framsidan.

Planbestämmelser

Ändring av detaljplan (2008-06-12) Detaljplan (2000-01-24)

Servitut, ga, samfälligheter, etc

Gemensamhetsanläggning: Umeå holmsund ga:24 ändamål: Vägar, Vattenförsörjning, Avloppsanläggning, Radio- TV och/eller tele, Elledning och/eller belysning, Grönområden Gemensamhetsanläggning: Umeå lingonriset ga:1 ändamål: Vägar, Grönområden, Garage och/eller parkering Samfällighet: Umeå lingonriset s:1

Bilplats

Carport och parkering. De 4 radhusen går ihop och köper skottningen och grusningen vintertid för den gemensamma parkeringsytan.

Bredband

Umeå Energi.

Ventilation

Mekanisk.

Vatten och avlopp

Kommunalt vatten året om. Kommunalt avlopp.

Energideklaration

Utförd

Beställd

Elektricitet

Nätbolag

Umeå Energi

Leverantör

Umeå Energi

Förbrukning

11 231 kWh/år

Drift per år

Elförbrukning

16 893 kr

Väg/Samfällighetsavgift

13 588 kr

Renhållning

3 364 kr

Summa

33 845 kr

I samfällighetsavgiften ingår det vattenavgift, medlemsavgift, medlemsavgift städ, bredband/tv-avgift. Därefter tillkommer det även vattenförbrukning på en avgift/år (den första för året blir lite dyrare). Fakturan kommer var tredje månad. Kostnad för fastighetsskatt tillkommer. De tre sammankopplade fastigheterna delar på sophanteringen och dess kostnad. Hemförsäkring tillkommer.

Taxeringsuppgifter

Typkod

220, Småhusenhet, bebyggd.

Totalt

2 170 000 kr

Byggnad

1 610 000 kr

Mark

560 000 kr

Skatt/avgift

10 425 kr

Taxeringsår

2024

Värdeår

2007

Pantbrev

Summa

2 206 000 kr

Antal

4 st

Närområde

Holmsund är ett samhälle i Umeälvens mynning som tillsammans med Obbola utgör kommundelen Holmsund-Obbola. Här kan du njuta av havet och naturen på nära håll. I Holmsund finns det till exempel fina småbåtshamnar med båtuppläggningsplatser. Strövstigar, vandringsleder och badplatser gör havet tillgängligt för alla. Natur och fritid I Holmsund finns Storsjöhallen - en friskvårdsanläggning som erbjuder träningsformer för alla. Hit kan du ta med hela familjen och bada i Aquarena, som är Umeås upplevelsebad, och besöka gymmet eller något av de olika gruppträningspassen. I Storsjöhallen hittar du även friskvårdsbehandlingar, restaurang och ungdomsgård. I närheten finns även badplatser utomhus, så som Ljumvikens havsbad med minigolf och beachvolley-planer. I Holmsund finns totalt 2 mil vandringsleder. Dessutom finns det attraktiva kanot-, skoter-, och cykelleder, naturstigar, motionsspår och en skidbacke. Här hittar du även Umeås golfbana med 27 hål och Omberget med skidbacke och utsiktstorn.

Kommunikation

Goda bussförbindelser till och från centrala Umeå och Norrlands universitetssjukhus. I Holmsund ligger Umeå hamn. Härifrån går det färjor till och från Vasa i Finland varje dag.

Närservice

I Holmsund finns mataffärer, spelbutik, gym, pizzerior och blomsteraffär. Skolor och barnomsorg Sandviksskolan (F-3). I populära byggnaden Trion finns Storsjöskolan (4-9) tillsammans med bibliotek och friskvårdsanläggning. I Holmsund finns det gott om förskolor.

Övrigt om närområdet

På Holmsunds bibliotek arrangeras en mängd olika kulturevenemang för alla åldrar.

Byggnad

Typ

Radhus

Byggår

2007

Fasad

Trä

Grund

Betongplatta

Stomme

Trä

Uppvärmning

Frånluftsvärmepump

Tak

Tegel

Fönster

3-glas

Övriga byggnader

Carport med isolerat förråd i länga bredvid radhuset. Cykelförråd och sophantering intill carporten.


Karta


Planlösning


Bilder