Näckens väg 22
Tomtebo, Umeå
Bo billigt i rymliga etta med mysig sovalkov!
Välplanerad lägenhet på attraktiva Tomtebo, uppförd 2018 med moderna materialval och en genomgående harmonisk känsla. Här möts du av ett hem där varje kvadratmeter är omsorgsfullt disponerad och där de fina ytskikten tillsammans med ett vackert parkettgolv skapar en varm och enhetlig ton. Det helkaklade badrummet med egen tvättmaskin ger extra bekvämlighet i vardagen. Köket är fullt utrustat med moderna vitvaror och erbjuder en trivsam plats för både matlagning och umgänge. Den smart planerade sovalkoven ger en avskild och ombonad sovplats med plats för skrivbord. Parkeringsplats finns tillgänglig i samband med inflytt, vilket gör boendet både smidigt. Som extra bekvämlighet finns ett separat förråd beläget på samma våningsplan, precis utanför lägenheten – lättillgängligt och praktiskt. Här bor du i ett lugnt och omtyckt område med närhet till natur, service och goda kommunikationer – ett hem att trivas i från första stund - med naturen- och vackra Nydalasjön runt hörnet och inom bekvämt avstånd till Universitet, NUS och IKSU. Området erbjuder goda kommunikationer med buss till övriga delar av Umeå samt fina gång- och cykelbanor. Hoppas vi ses på visningen!
Visningar
-
4majmåndagkl 17:45 - 18:15Visning mot tidsbokning - boka din tid via länken på våran hemsida.Klicka här för att boka
-
5majtisdagkl 12:45 - 13:15Visning mot tidsbokning - boka din tid via länken på våran hemsida.Klicka här för att boka
Fakta
Utgångspris
Månadsavgift
2 878 kr/mån
Indirekt nettoskuldsättning
427 223 kr
Andel i förening
1.4008 %
Fast.beteckning:
Pysslingen 3
Rum
1 st
Boarea
37.5 m²
Våningsplan
4 / 4
Hiss
Ja
Byggnadstyp
Flerbostadshus
Byggnadsår
2018
Delägare/Fastighetsmäklare
Interiör
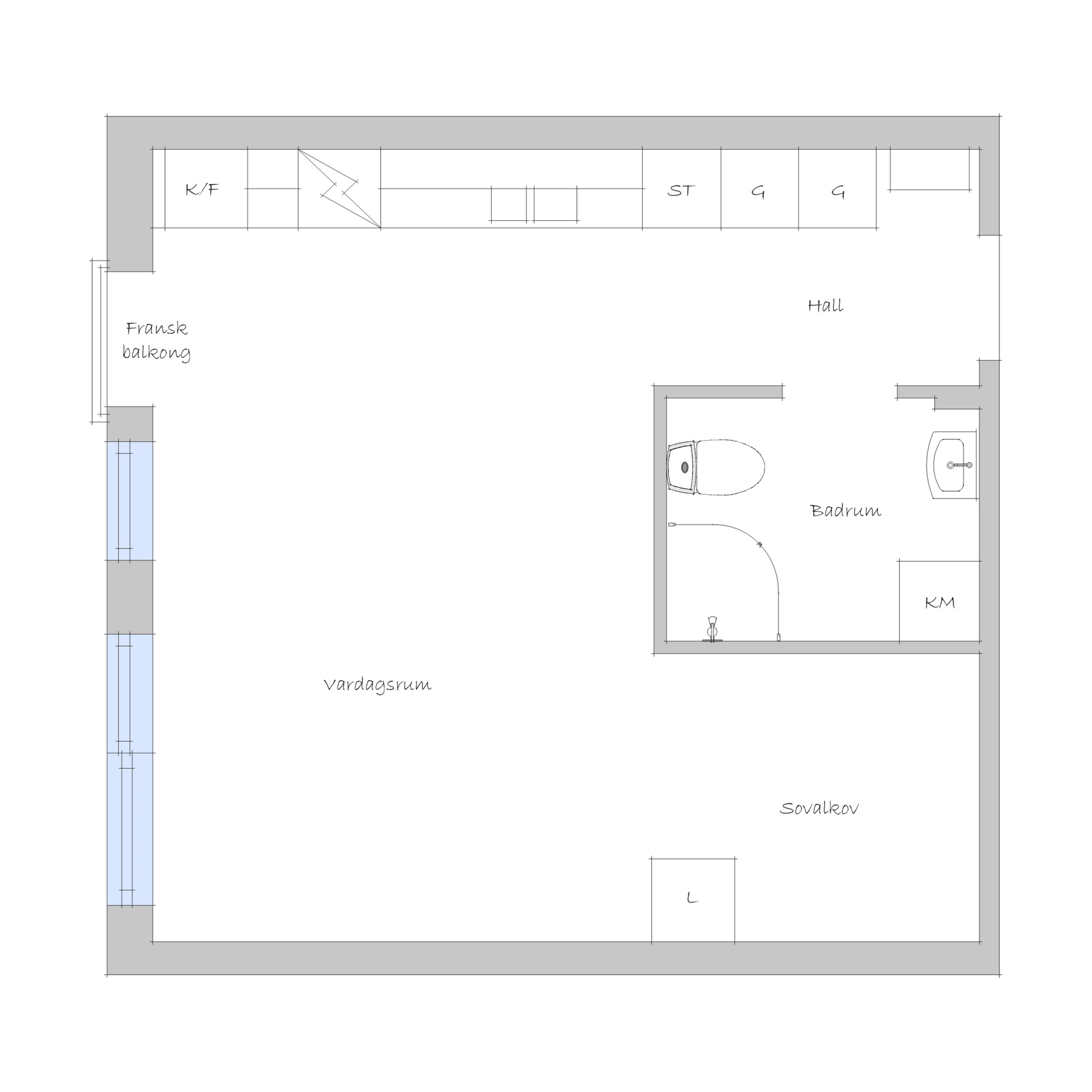
Hall Välkomnande hall med ett vackert parkettgolv och smakfull tapet som sätter tonen för bostadens varma helhetskänsla. Här finns praktisk avhängning via hatthylla samt god förvaring i två garderober och ett städskåp – allt snyggt integrerat för en ordnad entré. Badrum Stilrent badrum med grått klinkergolv och klassiskt vitt kakel som tillsammans skapar en lugn och tidlös atmosfär. Här finns en kombinerad tvätt- och torkmaskin som förenklar vardagen, samt kommod, spegelskåp med belysning, wc och ett elegant takduschset som ger en känsla av vardagslyx. Kök Ljust och trivsamt kök med vita, släta luckor och en praktisk laminatbänkskiva med klassisk diskbänk. Köket är fullt utrustat med diskmaskin, kombinerad kyl/frys, inbyggd mikro, häll och ugn – allt för ett smidigt och funktionellt köksliv. Här finns även plats för ett matbord i en naturlig samlingspunkt. Allrum Generöst och öppet allrum med ett härligt ljusinsläpp och en luftig planlösning som bjuder in till både avkoppling och sociala stunder. Här ryms såväl soffgrupp som matplats, och den franska balkongen i österläge ger ett fint ljusflöde och en extra känsla av rymd. Sovalkov Ombonad och smart planerad sovalkov med parkettgolv och harmonisk tapet. Den avskilda placeringen skapar en lugn sovdel, kompletterad med ett praktiskt garderob för bra förvaring.
Månadsavgift
2 878 kr/mån
Inkl vatten och värme, VA. En avgift på 180 kr/månaden tillkommer för kabel-tv/bredbandsavgift. Elen beräknas efter faktisk förbrukning och debiteras i efterhand.
Indirekt nettoskuldsättning
427 223 kr
Balkong, uteplats och bilplats
I dagsläget (2026-04-10) finns det lediga parkeringar att hyra. Kö till Carport.
Bredband
250/250 gruppavtal bredband Tele 2.
Ventilation
Mekanisk till- och frånluft (FTX).
Energideklaration
Utförd
Utförd: 15/12 2020
Klass
C
Närområde
Tomtebo är ett av Umeås nyaste bostadsområden som ligger naturskönt vid Nydalasjöns sydspets, cirka 5 km från centrala Umeå. Tomtebo är ett område som utvecklas och bebyggs hela tiden, naturnära men ändå med stadsmässig karaktär. Här blandas flerfamiljshus och villor med bostads- och hyresrätter. Även tomter för eget byggande finns i området. Området ligger nära universitetsområdet, sjukhuset och träningsanläggningen Iksu. Hösten 2022 öppnade gymkedjan Nordic Wellness en anläggning på Tomtebo. Natur och fritid Som boende på Tomtebo har du Nydalasjön runt knuten: ett omtyckt rekreationsområde med promenadvägar, grillplatser, motionsslingor, och äventyrslekpark. Längs sjön finns flera platser där du kan fiska, bada, grilla, spela beachvolley, leka eller klättra i äventyrsparken eller bara promenera och njuta av naturen. I närheten finns Grössjöns naturreservat: Ett stadsnära vildmarksområde med en grund fågelsjö, fågeltorn, gammelskog och hjortronmyrar. Flera markerade stigar med rastplatser, eldstäder och informationstavlor. Grössjön runt är en 4,5 km markerad stig. Vintertid kan du åka långfärdsskridskor och längdskidor på Nydalasjön. Vid Nydalasjöns norra sida finns även ett längdskidspår med konstsnö.
Kommunikation
Gång- och cykelavstånd till Umeå centrum, Norrlands universitetssjukhus, Umeå universitet, Umeå Östra resecentrum och IKSU, norra Europas största träningsanläggning. I närheten finns även Nordic Wellnes. Även goda bussförbindelser.
Närservice
En mindre närbutik, frisör och flera restauranger finns i området bland annat Ruccola, Crosta (pizzeria+cafe), Kuben (smashed burgers) Nio Thaimat (hämtmat), Älvans pizzeria . Stora Coop som färdigställdes i slutet av 2018 finns i området. Vid Ålidhems centrum, cirka 1 km bort, finns mataffärer och apotek, Coop, Ica samt Lidl. Där hittar du även en restaurang med nattklubb. Strömpilens handelsområde ligger några kilometer bort. Här finner du bland annat stormarknad, klädbutik, blomsteraffär, systembolag, frisör och snabbmatsrestaurang Skolor och barnomsorg I området finns ett flertal förskolor samt skolor. Exempelvis så finns förskolan Skatteelden, Tomtebogårds skola (F-3), Sjöfruskolan (F-6) och Carlslund (7-9) med flera. I närheten av Sjöfruskolan finns en stor sporthall.
Byggnad
Typ
Flerbostadshus
Byggår
2018
Förening
Namn
Brf Pysslingarna 1.
Organisationsnr
769632-0998.
Tillåter delat ägande
Ja.
Om föreningen
Förening som uppförts med tillträde under våren 2018. Riksbyggen sköter den ekonomiska förvaltningen. Föreningen består av 54 st lägenheter. Adresserna är Näckens väg 20 och 22.
Organisationsform
Bostadsförening.
Parkering
P-platser 445 kr/månaden, exl elförbrukning. Carport 545 kr/månaden, exl elförbrukning.
Övrigt
Föreningen gör en bedömning vid ansökan om medlemskap för juridisk person.
Renoveringar
Under 2023 har föreningen slutfört finansiering av laddboxar till elbilar. För att bevara föreningens hus i gott skick utförs löpande reparationer av uppkomna skador samt planerat underhåll av normala förslitningar.
Gemensamma utrymmen
De gemensamma utrymmen som finns är: - Barnvagnsrum - Cykelrum - Soprum.
Äger marken
Ja.
Tv och bredband
250/250 gruppavtal bredband Tele 2.
Tillåter juridisk person som köpare
Ja.
Äkta förening
Ja.
Lägenheter
54 st.
Pantsättningsavgift
588 kr.
Överlåtelseavgift
1 470 kr. Betalas av Köpare.
Karta
Planlösning
Planritning
Bilder
Fastighetskarta
Fastighetskarta
Flygfoto
Nydalasjön
Äventyrslekparken vid Nydalasjön
Tomtebo Äventyrslekplatsen 2
Tomtebo Äventyrslekplatsen 1
Tomtebo Äventyrslekplatsen 3
Tomtebo Coop
Universitetet
Universitetet