Hissjövägen 30

Haga, Umeå

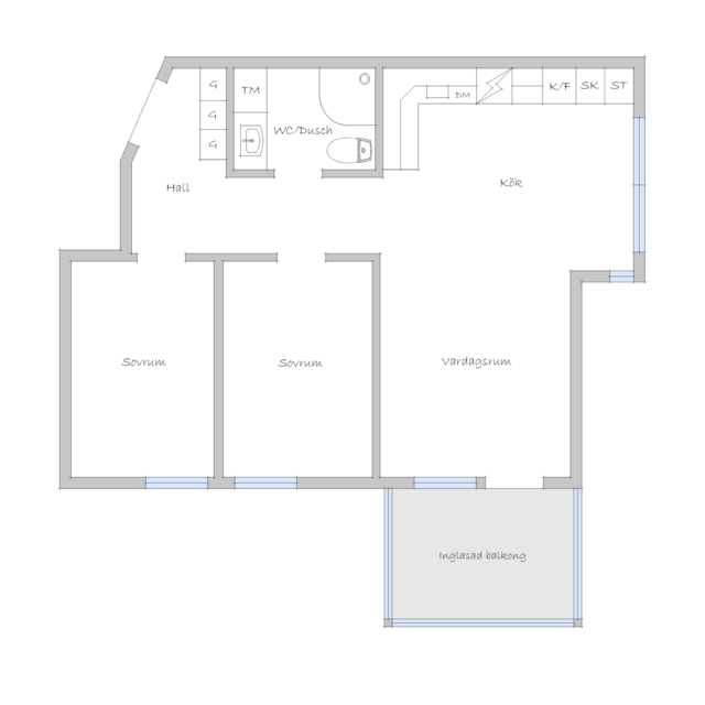
Välkommen till en trivsam, ljus och smakfullt renoverad lägenhet – belägen högst upp i huset med en fantastisk inglasad balkong. Här bor du i en mycket välskött och lågt belånad förening med låg månadsavgift där allt ingår, belägen på populära Haga med närhet till allt du kan önska. Bostaden erbjuder en genomtänkt planlösning där varje kvadratmeter tas tillvara. Den välkomnande hallen har stilrent klinkergolv och goda avhängningsmöjligheter. Vidare in finner du två rymliga sovrum med plats för större säng – varav ett idag disponeras som en lyxig walk-in closet kombinerad med en praktisk kontorshörna. Det ombyggda köket i L-form ger generösa arbetsytor och överträffar originalutförandet med både funktion och design. Här finns en modern maskinpark, gott om förvaring samt plats för matbord. Köket samspelar öppet och modernt med vardagsrummet, som erbjuder gott om utrymme för en större soffgrupp – perfekt för både familj och vänner. Från vardagsrummet når du den inglasade balkongen högst upp i huset. Här kan du njuta av många soltimmar, en fin vy och gott om plats för loungemöbler. En perfekt plats för avkoppling – oavsett om du umgås med vänner eller njuter av lugnet på egen hand. Det rymliga badrummet med golvvärme erbjuder wc, handställ med kommod, dusch med svängbara glasdörrar, kombimaskin samt en fräsch känsla. Här bor du med närhet till matbutiker, restauranger, grönområden och träningsanläggningar, samt med goda kommunikationer och endast ett stenkast från Umeå centrum. Ett hem att trivas i – varmt välkommen på visning! 2016: * Målat om alla väggar * Platsbyggda garderober * Bytt golv i sovrum och garderob (tidigare plastmatta) * Föreningen bytte lås på allas ytterdörrar * Golv till balkongen 2019: * Nya duschväggar * Ny kombinerad tvättmaskin/torktumlare från Electrolux 2021: * Byte av alla innerdörrar * Ny badrumsspegel med dimmerfunktion 2023: * Nya garderober i hallen 2026: * Ny blandare till tvättställ Övrig info: * Köket är utbyggt & är större än originalköken i dessa lägenheter

Visningar

  • 27
    april
    måndag
    kl 17:15 - 18:00
    Visning mot tidsbokning - boka din tid via länken på våran hemsida.
    Klicka här för att boka
  • 28
    april
    tisdag
    kl 16:00 - 16:45
    Visning mot tidsbokning - boka din tid via länken på våran hemsida.
    Klicka här för att boka

Fakta

Utgångspris
2 095 000 kr
Månadsavgift

3 705 kr/mån

Indirekt nettoskuldsättning

266 791 kr

Andel i förening

0.806 %

Rum

3 st

Boarea

52.7 m²

Våningsplan

4 / 4

Hiss

Ja

Byggnadstyp

Flerbostadshus

Byggnadsår

1992

Delägare/Fastighetsmäklare

Profil

Tobias Sandström

070-334 88 43

tobias@maklarcity.se

Månadsavgift

3 705 kr/mån

Inkl värme, VA, hushållsel, kabel-TV och bredband

Indirekt nettoskuldsättning

266 791 kr

Enligt årsredovisningen 2024

Balkong, uteplats och bilplats

Parkeringsplats med motorvärmare finns ledigt (14/4 -26).

Bredband

TV och bredband via Telenor (1000/1000) kostar 340 kr/månad som en obligatorisk avgift. Denna kostnad är inräknad i den angivna månadsavgiften.

Ventilation

Mekanisk till- och frånluft (FTX).

Energideklaration

Utförd

Utförd: 28/3 2019

Klass

C

Närområde

Stadsdelen Haga är ett omtyckt och populärt bostadsområde strax norr om Umeå centrum. Stadsdelen är en av Umeås äldre, och började byggas på 1920-talet. Här finns bland annat omtyckta Gammlia, fotbollsanläggning och trevliga parker. Natur och fritid Gammlia är ett friluftsmuseum där du kan uppleva svensk kulturhistoria. Här finns också Västerbottens museum som samlar Svenska Skidmuseet och ett fiske- och sjöfartsmuseum. Det är här umeborna samlas för att fira midsommar och andra högtider. Här är det också nära till motionsspår och natur, med I20-skogen till väster och Gammliaskogen och Stadsliden till öster.

Kommunikation

Gång- och cykelavstånd till centrala Umeå, Umeå universitet, Norrlands universitetssjukhus och Umeå Centralstation. God bussförbindelse.

Närservice

Längs Östra Kyrkogatan som sträcker sig genom hela området finns mataffär, pizzeria, gym med mera. Nedre Haga ligger väldigt nära Järnvägstorget och det områdets rika utbud av affärer och restauranger. Skolor och barnomsorg I området finns Hagaskolan (F-9), Sandaliden (F-3), Maja Beskow högstadie och gymnasieskola samt Midgårds gymnasieskola. I området finns det gott om förskolor.

Byggnad

Typ

Flerbostadshus

Byggår

1992

Förening

Namn

Brf Kruthornet.

Organisationsnr

769603-3054.

Hemsida

www.kruthornet.com/.

Kontaktperson

Aspia i Umeå. Tel. 010-2524738.

Ekonomi

Avgifter för boende sänktes med 10% 2012 och 10% 2016 samt ytterligare 10% 2017. De senaste åren har föreningen investerat 5,5 miljoner och amorterat 8,5 miljoner. Under 2017 investeras ytterligare 0,5 miljoner genom bygnationen av fler parkeringar samtidigt som de avsätter ca 0,5 miljon extra för framtida underhåll.

Om föreningen

Kruthornet är en fristående äkta bostadsrättsförening belägen på den södra delen av stadsdelen Haga i Umeå. Föreningen bildades 1998 i fastigheterna Kruthornet 9 (Hissjövägen 24-30, byggår 1992) och Kruthornet 12 (Hissjövägen 42-48, byggår 1994). De har totalt 128 lägenheter på 38-54 kvm med öppna och ljusa planlösningar. Föreningen jobbar kontinuerligt med hållbarhetsfrågor. De har källsortering i soprummen, köper miljövänlig el och använder miljöfilter i ventilationsanläggningarna. De använder även den senaste tekniken för värmeåtervinning. Tvättstuga finns i nr 26, 28 och 46. För mer info besök föreningens hemsida: www.kruthornet.com.

Organisationsform

Bostadsförening.

Parkering

P-plats, motorvärmarplats och carport finns att hyra för 400 kronor per månad för carport och 300 kronor per månad för parkeringsplats med motorvärmaruttag, el kostnad inkluderat. Parkering utan motorvärmare kostar 150 kronor per månad. Kö kan förekomma till respektive plats. Gästparkeringar finns att tillgå.

Övrigt

Låsbart cykelförråd finns i separat byggnad.

Renoveringar

Nya cykelställ, häckar och asfaltering 2013 Inglasning av balkonger 2015+2016 Ommålning av 4 trapphus (Hissjövägen 42-48) 2016 Byte av låssystem 2016 Ommålning av tvättrum byte av tvättmaskiner samt torktumlare 2022 Renovering av fasad -2022/2023 OVK - 2022 Installerat kodlås till soprummen 2024.

Gemensamma utrymmen

Föreningen är delägare i en samfällighet tillsammans med Riksbyggens Brf Umeåhus nr 33. Föreningens andel 64%. Samfälligheten förvaltar en gemensamhetsanläggning som omfattar parkering, fjärrvärme, vatten och avlopp samt soprum.

Tv och bredband

Bredband via Telenor inkl wifirouter och digital-tv inkl digitalbox från Telenor. 1000/100Mb Bredband och TV ingår i månadsavgiften. För utbud, se www.telenor.se.

Tillåter juridisk person som köpare

Nej.

Äkta förening

Ja.

Lägenheter

128 st.

Överlåtelseavgift

Betalas av Köpare.


Karta


Planlösning


Bilder