Solrosvägen 5B

Umedalen, Umeå

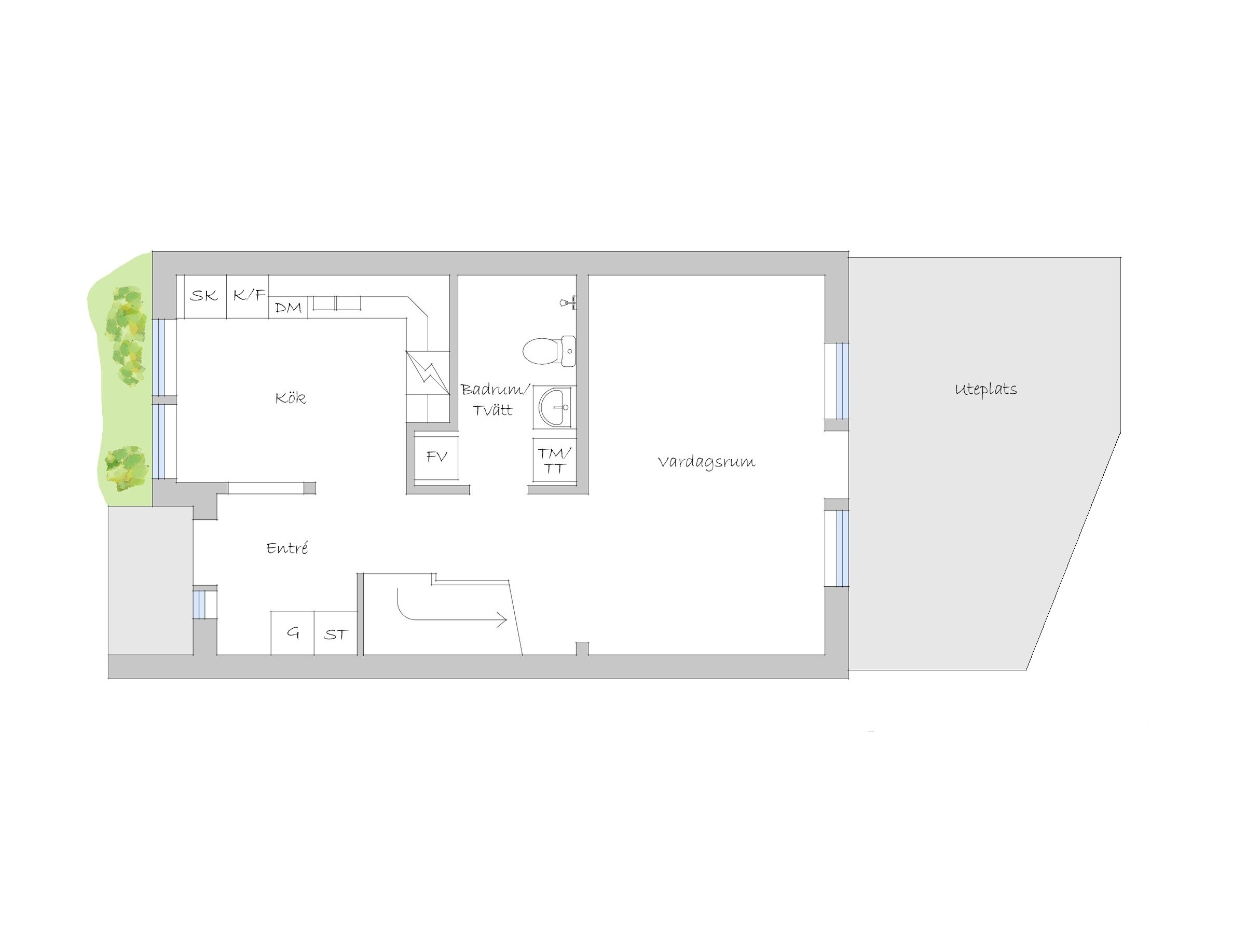
Trivsamt och välplanerat radhus med två uteplatser i populärt område Välkommen till detta ljusa och välplanerade radhus som erbjuder ett bekvämt och harmoniskt boende i ett omtyckt område. Här bor du i en välskött bostad som genom åren genomgått flera renoveringar – perfekt för dig som söker ett hem att trivas i från första stund. Redan i hallen möts du av ett stilrent klinkergolv och generösa avhängningsmöjligheter som gör vardagen smidig. Vidare in i bostaden finner du ett rymligt och fräscht kök med modern maskinpark, gott om arbetsyta och plats för ett större matbord – en naturlig samlingspunkt för familj och vänner. Det luftiga vardagsrummet erbjuder gott om utrymme för en stor soffgrupp där hela bekantskapskretsen får plats, samt möjlighet till ytterligare möblering såsom matplats eller hemmakontor. Härifrån nås bostadens ena uteplats – den större modellen – som är generöst utbyggd och ger plats för både loungemöbler, matgrupp, grill och odlingar. En perfekt plats för avkoppling och sociala tillställningar. Bostaden har två stilrena badrum med kakel och klinker, praktiskt fördelade med ett på vardera plan. På övre plan finner du även tre rymliga sovrum med goda förvaringsmöjligheter. Det största sovrummet erbjuder extra komfort med både klädkammare och egen balkong. Här får du ett hem som kombinerar funktion, komfort och livskvalitet – med närhet till allt du behöver. Till bostaden hör även en carport med intillliggande förråd. Varmt välkommen på visning! Renoveringar: 2019: - Målat fasad 2021: - Nya vitvaror; kyl/frys, spis, köksfläkt (Mats Åke på Teg) - Ny fasadbelysning framsida och baksida (Nordelektro) - Renovering av trappan (Sandström snickeri) 2025: - Renovering badrum (Haga bygg) - Utökat ytor på vinden för ytterligare möjlighet till förvaring (Haga bygg) - Byta av tegelpannor (Haga bygg) 2026: - Nybyggt cykelförråd med förrådsdel (Haga Bygg) - Ny tvättmaskin Mellan 2021 och 2026 har fjärrvärmesystemet underhållits och löpande delar har bytts ut eller uppdaterats (Johanssons rör). Övrigt: Det finns ett rymligt kallförråd i separat länga vid parkeringarna. I detta hus finns även återvinning av paper, plast, tidning, metall, lampor, batterier samt brännbart. Till huset finns en plats carport. I dagsläget är den el-säkrad för att kunna ladda en hybrid bil. Utredning om eventuell installation av laddstolpe pågår inom föreningen. På samfälligheters mark finns några bärbuskar, hallonplantor och en gräsmatta. Gräsmattan nås enkelt från baksidan av huset via altanen.

Visningar

  • 11
    maj
    måndag
    kl 16:00 - 16:40
    Visning mot tidsbokning - boka din tid via länken på våran hemsida.
    Klicka här för att boka
  • 12
    maj
    tisdag
    kl 17:20 - 18:00
    Visning mot tidsbokning - boka din tid via länken på våran hemsida.
    Klicka här för att boka

Fakta

Utgångspris
3 295 000 kr
Fast.beteckning:

Ängsrutan 24

Rum

4 st

Sovrum

3 st

Boarea

97 m²

Biarea

6 m²

Tomtarea

141 m²

Byggnadstyp

2-plans radhus

Byggnadsår

2006

Delägare/Fastighetsmäklare

Profil

Tobias Sandström

070-334 88 43

tobias@maklarcity.se

Planbestämmelser

Detaljplan (2003-05-14)

Servitut, ga, samfälligheter, etc

Gemensamhetsanläggning: Umeå ängsrutan ga:1 ändamål: Vägar, Vattenförsörjning, Avloppsanläggning, Elledning och/eller belysning, Grönområden, Garage och/eller parkering Samfällighet: Umeå ängsrutan s:1 Last: Ledningsrätt Fjärrvärme, tele, 2480K-06/19.1

Bredband

Fiber.

Ventilation

Mekanisk frånluft.

Vatten och avlopp

Kommunalt vatten året om. Kommunalt avlopp.

Elektricitet

Nätbolag

Umeå Energi

Leverantör

Umeå Energi

Förbrukning

2 193 kWh/år

Drift per år

Uppvärmning

13 346 kr

Elförbrukning

5 601 kr

Väg/Samfällighetsavgift

13 200 kr

Summa

32 147 kr

I samfällighetsvgiften ingår vatten, sophantering, skötsel av gemensamma ytor ink vägar samt carport och el till MV. Kostnad för vatten enligt schablon, överskjutande av faktiskt förbrukning regleras en gång per år. Tillkommer gör kostnad för villaförsäkring.

Taxeringsuppgifter

Typkod

220, Småhusenhet, bebyggd.

Totalt

2 446 000 kr

Byggnad

1 681 000 kr

Mark

765 000 kr

Skatt/avgift

10 425 kr

Taxeringsår

2024

Värdeår

2006

Pantbrev

Summa

2 716 000 kr

Antal

4 st

Närområde

Umedalen ligger cirka 5 km väster om Umeå, med bär- och svampmarker in på knutarna. De byggnader som en gång var Umedalens sjukhus är idag omsorgsfullt renoverade och inhyser numera kontor, restauranger, bibliotek, vårdcentral, sporthall, livsmedelsbutiker, daghem och en skola. Det moderna Umedalen har vuxit fram med ena foten på landet och den andra i stan. Natur och fritid På Umedalen bor du nära naturen, med vidsträckta skogar i norr och Umeälven i söder. Det är nära till strandpromenaden, till motionsspår och till fågeltillhållet Prästsjön. Det har byggts en ny äventyrslekpark bredvid sporthallen Musköten. Skulpturparken på Umedalen lockar årligen tiotusentals besökare. Den invigdes år 2004 och utökas med nya verk vartannat år. På Iksu spa kan du ladda upp eller varva ner. Här finns möjlighet till gruppträning, individuell träning och personlig träning. Här kan du även fika, prova på ljusterapi, njuta av värmen i solsimulatorn eller prova massage och olika spa-behandlingar.

Kommunikation

Goda bussförbindelser till och från centrala Umeå, Umeå universitet och Norrlands universitetssjukhus.

Närservice

Affärer och restauranger På Umedalen finns en närbutik och på området Klockarbäcken alldeles intill finns byggvaruhus och elektronikkedja samt Willys. Äter gott gör du på den välrenommerade franska bistron Le Garage. Skolor och barnomsorg Backenskolan (F-6), Västangårdsskolan (F-9), Waldorfskolan (F-9), Montessoriskolan (F-6), Hannaskolan (F-9). Gymnasieskolor i området är Waldorfskolan och NTI-gymnasiet. I området finns det flera förskolor.

Byggnad

Typ

2-plans radhus

Byggår

2006

Fasad

Träpanel

Grund

Betongplatta

Stomme

Trä

Uppvärmning

Fjärrvärme

Tak

Betongpannor

Fönster

3-glas


Karta


Planlösning


Bilder